Venta
U$S 1.500.000.-

Trinidad Guevara 300 / TOR0561Puerto Madero, Capital Federal, Buenos Aires

Superficie
347,01 m2
Propia
328,21 m2
Cubierta
18,80 m2
Balcón
Departamento
3
Dormitorios
4
Baño/s
3
Cochera/s
Descripción

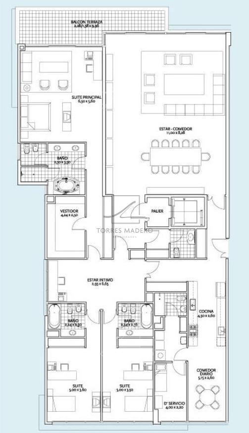
EXCLUSIVO departamento de TRES dormitorios en el edificio Madero Center, con dependencia de servicio. El departamento cuenta con un gran living comedor todo con vista al dique y al parque verde costero, amplia cocina con comedor diario y dependencia de servicio, gran master suite con un gran balcón aterrazado también con increíbles vistas al dique y a la ciudad, todos los cerramientos son con doble vidrio . El departamento cuenta con tres cocheras fijas y una baulera. Amenities: Piscina cubierta climatizada con reposeras y descubierta climatizada. Área de spa. (sala de relax, sauna y ducha escocesa) Fitness center (GYM y salones para gimnasia aeróbica, yoga y danza clásica) Beauty Center (sala de peluquería y manicura) Microcine (sala de cine real para 30 personas) Salón para 200 personas con entrada independiente con cocina, mesas y sillas, guardarropa, bar. Sala de juego de chicos tipo guardería, súper equipada. Salón de adolescentes (Mesa de pool, metegol y ping pong) Cocheras de cortesía. MADERO CENTER se trata de un complejo de cuatro edificios que ocupan una manzana entera, dejando un amplio patio interior. Madero Center tiene tres edificios residenciales (con departamentos que van desde los 105 a 690 metros cuadrados) y uno de oficinas: el que mira a la Avenida Juana Manso. En el centro de la manzana se encuentra un lugar destinado a los amenities y servicios, que son de primera calidad. En la planta baja, sobre las calles Pierina Dealessi, Trinidad Guevara y Macacha Güemes, posee locales comerciales. El estilo de las construcciones es contemporáneo y sobrio; el bloque de oficinas posee fachadas totalmente vidriadas con unas losas irregulares que sobresalen en diagonal a modo de parasoles horizontales; y los bloques residenciales intercalan planos vidriados y ciegos con ventanas cuadradas y balcones corridos. * Venta Supeditada a la Tramitación del COTI por parte del Propietario. Todas las medidas enunciadas son meramente orientativas, las medidas exactas serán las que se expresen en el respectivo título de propiedad de cada inmueble. Todas las fotos, imágenes y videos son meramente ilustrativos y no contractuales. Los precios enunciados son meramente orientativos y no contractuales. Esta publicidad respeta lo establecido en el art. 4 y 8 de la ley 24.240 * * Se requiere identificación para Ingresar al edificio*

Detalles
  • Agua caliente: Central por caldera
  • Aire Acondicionado: Si
  • Amenitie: Piscina Climatizada
  • Amenitie: Gimnasio
  • Amenitie: Microcine
  • Antigüedad: 15 años
  • Ascensor: 2
  • Balcón: Muy amplio
  • Baño Servicio: SI
  • Baños: 4
  • Baulera: Si
  • Calefacción: Dual, aire acondicionado y piso radiante
  • Cantidad Pisos: 9
  • Cochera: 3
  • Cocina: 4.50 x 2.60
  • Comedor Diario: 5 x 2.60
  • Dependencia: Si
  • Deptos. por Piso: 6
  • Disposición: Frente
  • Dormitorio: Master suite 6.50 x 5.60
  • Dormitorio: Suite 5.00 x 3.60
  • Dormitorio: Suite 5.00 x 3.50
  • Entrada: Moderna e importante
  • Estado: Excelente
  • Hall: Importante
  • Hall Intimo: Si
  • Lavadero: SI
  • Orientación: Norte
  • Palier: Privado
  • Pileta: Cubierta y Descubierta
  • Placards: Completos
  • Tipo Pisos: Madera
  • Toilette: Si
Adicionales
  • Cochera
  • Dependencia
  • Balcón
  • Vista
  • Luz
Mapa
Video

SUBSCRÍBASE AL

NEWSLETTER